Přisvícení do zatáčky - adaptivní světla (AFS)
- jirkaj
- Člen klubu

- Příspěvky: 882
- Registrován: 28.04.2013 20:47
- Bydliště: Vsetín
Re: Přisvícení do zatáčky - adaptivní světla (AFS)
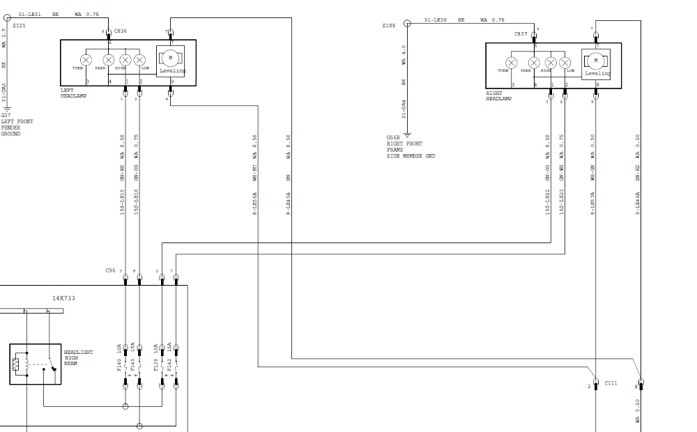
No to bude asi tím, že máš přípravu. Já přípravu nemám, tím pádem ani ten konektor, kterým si to můžu přehazovat
. Mě tam vedou prostě 2x dva spojené dráty přímo od světel, jeden pár je pro ovladání naklápění a druhý je kostra pro naklápění. Buď bych musel dodělávat ten konfigurační konektor, nebo prostě střihnout a přepinovat.
Naposledy upravil(a) jirkaj dne 12.02.2021 17:57, celkem upraveno 2 x.
- jenikHK
- Moderátor

- Příspěvky: 3150
- Registrován: 10.03.2008 14:30
- Bydliště: Praha
Re: Přisvícení do zatáčky - adaptivní světla (AFS)
Přesně tak - konektory světel byly plně osazené i konektory pro sklápění AFS byly na svém místě - tudíž byl přítomen i ten konfigurační konektor.
Pro nižší výbavu bez připravené kabeláže v motorovém prostoru to ale nemá smysl řešit dodělávání konektoru odnikud nikam
Pro nižší výbavu bez připravené kabeláže v motorovém prostoru to ale nemá smysl řešit dodělávání konektoru odnikud nikam
Ford C-Max 1.8i 16V, 2010, Titanium
Byl: Ford Focus 1.8 TDdi kombi, 1999, ghia
Byl: Ford Sierra 2.0i DOHC kombi, 1989, LX
Byl: Ford Focus 1.8 TDdi kombi, 1999, ghia
Byl: Ford Sierra 2.0i DOHC kombi, 1989, LX
- ScorpionSX
- Zkušený

- Příspěvky: 1841
- Registrován: 29.01.2011 18:05
- Bydliště: Trenčín, SR
Re: Přisvícení do zatáčky - adaptivní světla (AFS)
Všimol som si jednu vec a chcem sa spýtať či to tak niekto s AFS má podobné. Pri natočení svetiel úplne vpravo sa pravá strana pri "doraze" ešte mierne pridvihne hore. Spravil som aj video, prikladám link: https://www.youtube.com/watch?v=qHMCc1e0BhA
YouTube Video
Takto blízko pri stene je to skutočne len malý zdvih, ale pri väčšej vzdialenosti to je poznať viac. Video som ale točil cez deň, tak som musel byť bližšie aby bol lúč svetla vôbec vidieť.
Používam LED sadu žiaroviek a myslel som že je to tým, že tam možno chladič LEDky niekde zavadzia, ale robí to aj po výmene za obyčajné žiarovky.
Nezdá sa mi, že by to robilo pri zatočení dolava, ale tam je to ťažko povedať, lebo to musím sledovať len počas jazdy a to je zložitejšie.
Je to chyba alebo vlastnosť?
Takto blízko pri stene je to skutočne len malý zdvih, ale pri väčšej vzdialenosti to je poznať viac. Video som ale točil cez deň, tak som musel byť bližšie aby bol lúč svetla vôbec vidieť.
Používam LED sadu žiaroviek a myslel som že je to tým, že tam možno chladič LEDky niekde zavadzia, ale robí to aj po výmene za obyčajné žiarovky.
Nezdá sa mi, že by to robilo pri zatočení dolava, ale tam je to ťažko povedať, lebo to musím sledovať len počas jazdy a to je zložitejšie.
Je to chyba alebo vlastnosť?
Ford Focus MK2 2005 1.8TDCi - GALLERY
- jenikHK
- Moderátor

- Příspěvky: 3150
- Registrován: 10.03.2008 14:30
- Bydliště: Praha
Re: Přisvícení do zatáčky - adaptivní světla (AFS)
Vydrž ještě týden, pak se podívám na našem...
A jestli bys chtěl vidět natočení světel doleva na stojícím autě, stačí překlopit parametr v jednotce AFS z LHD na RHD (z levostranného na pravostranné řízení)
A jestli bys chtěl vidět natočení světel doleva na stojícím autě, stačí překlopit parametr v jednotce AFS z LHD na RHD (z levostranného na pravostranné řízení)
Ford C-Max 1.8i 16V, 2010, Titanium
Byl: Ford Focus 1.8 TDdi kombi, 1999, ghia
Byl: Ford Sierra 2.0i DOHC kombi, 1989, LX
Byl: Ford Focus 1.8 TDdi kombi, 1999, ghia
Byl: Ford Sierra 2.0i DOHC kombi, 1989, LX
- ScorpionSX
- Zkušený

- Příspěvky: 1841
- Registrován: 29.01.2011 18:05
- Bydliště: Trenčín, SR
Re: Přisvícení do zatáčky - adaptivní světla (AFS)
Oki, vydržím ešte
Jo jo, viem že sa to dá prepnúť, len večne so sebou nezoberiem noťas keď sa v tom idem vŕtať
Ale vyskúšam si to tiež ešte niekedy v týždni.
Jo jo, viem že sa to dá prepnúť, len večne so sebou nezoberiem noťas keď sa v tom idem vŕtať
Ale vyskúšam si to tiež ešte niekedy v týždni.
Ford Focus MK2 2005 1.8TDCi - GALLERY
-
kozelkozel
- Nováček

- Příspěvky: 22
- Registrován: 09.08.2011 12:05
- Bydliště: Praha
Re: Přisvícení do zatáčky - adaptivní světla (AFS)
Zdravím, nefunguje mi přisvícení vlevo, vpravo je vše ok obě světla se natočí ,ale vlevo nic. Jde o Focus II 2005 2l 100kw TDCi. Děkuji
Ford Focus II po FL 2008 1,6 tdci 66kw
Ford Kuga 4x4 2012 2.0l 103 kw
Ford Kuga 4x4 2012 2.0l 103 kw
- ScorpionSX
- Zkušený

- Příspěvky: 1841
- Registrován: 29.01.2011 18:05
- Bydliště: Trenčín, SR
Re: Přisvícení do zatáčky - adaptivní světla (AFS)
Keď auto stojí, že? To nie je porucha, ale funkcia, aby si napríklad pri zastavení na krajnici neoslepoval autá v protismere s vytočenýmí kolesami dolava.
Ford Focus MK2 2005 1.8TDCi - GALLERY
-
kozelkozel
- Nováček

- Příspěvky: 22
- Registrován: 09.08.2011 12:05
- Bydliště: Praha
Re: Přisvícení do zatáčky - adaptivní světla (AFS)
Aha , díky zkusím a dám vědět.ScorpionSX píše: 13.01.2022 13:04 Keď auto stojí, že? To nie je porucha, ale funkcia, aby si napríklad pri zastavení na krajnici neoslepoval autá v protismere s vytočenýmí kolesami dolava.
Ford Focus II po FL 2008 1,6 tdci 66kw
Ford Kuga 4x4 2012 2.0l 103 kw
Ford Kuga 4x4 2012 2.0l 103 kw
-
kozelkozel
- Nováček

- Příspěvky: 22
- Registrován: 09.08.2011 12:05
- Bydliště: Praha
Re: Přisvícení do zatáčky - adaptivní světla (AFS)
Tak nic ,to natáčení vlevo nefunguje ani při jízdě.
Ford Focus II po FL 2008 1,6 tdci 66kw
Ford Kuga 4x4 2012 2.0l 103 kw
Ford Kuga 4x4 2012 2.0l 103 kw
- jenikHK
- Moderátor

- Příspěvky: 3150
- Registrován: 10.03.2008 14:30
- Bydliště: Praha
Re: Přisvícení do zatáčky - adaptivní světla (AFS)
Asi bych tipoval problém v snímači natočení volantu 
Ford C-Max 1.8i 16V, 2010, Titanium
Byl: Ford Focus 1.8 TDdi kombi, 1999, ghia
Byl: Ford Sierra 2.0i DOHC kombi, 1989, LX
Byl: Ford Focus 1.8 TDdi kombi, 1999, ghia
Byl: Ford Sierra 2.0i DOHC kombi, 1989, LX
- ZaQik
- Admin

- Příspěvky: 25105
- Registrován: 30.05.2010 17:33
- Bydliště: exit 82 na D0
Re: Přisvícení do zatáčky - adaptivní světla (AFS)
to by blblo ESP
-------------------
a kdyz jsi to zkousels, nemel ovladac svetel otocen na denni sviceni?
-------------------
a kdyz jsi to zkousels, nemel ovladac svetel otocen na denni sviceni?
Ford Focus mk3 combi 1.6 Ti-VCT, r.v.2018 + Ford Fiesta mk7 3D 1.25, r.v.2014
byl Ford Focus mk2 combi 1.6, r.v.2009 + Ford Fiesta mk6 1.4 TDCi r.v. 2004
Nejsem poradna, encyklopedie ani hotline spolecnosti Ford - ptejte se na foru, od toho je.
byl Ford Focus mk2 combi 1.6, r.v.2009 + Ford Fiesta mk6 1.4 TDCi r.v. 2004
Nejsem poradna, encyklopedie ani hotline spolecnosti Ford - ptejte se na foru, od toho je.
- jenikHK
- Moderátor

- Příspěvky: 3150
- Registrován: 10.03.2008 14:30
- Bydliště: Praha
Re: Přisvícení do zatáčky - adaptivní světla (AFS)
Jestli to auto ale ESP má (2005 nemuselo)?
Nemělo by být pro denní svícení natáčení neaktivní?
Nemělo by být pro denní svícení natáčení neaktivní?
Ford C-Max 1.8i 16V, 2010, Titanium
Byl: Ford Focus 1.8 TDdi kombi, 1999, ghia
Byl: Ford Sierra 2.0i DOHC kombi, 1989, LX
Byl: Ford Focus 1.8 TDdi kombi, 1999, ghia
Byl: Ford Sierra 2.0i DOHC kombi, 1989, LX
- jenikHK
- Moderátor

- Příspěvky: 3150
- Registrován: 10.03.2008 14:30
- Bydliště: Praha
Re: Přisvícení do zatáčky - adaptivní světla (AFS)
Pokud je to auto bez ESP, tak nebude ani chyba snímače někde napsaná a jednotka světel používá pro natáčení jen jeden výstup ze snímače pro natočení světel, který je navíc na výstupu pro ESP nezávislý...
Alternativně mě napadá, zda není problém v přenosu dat o rychlosti do ŘJ světel, respektive problém s jednotkou - myslí si, že auto stojí. Vidí diagnostika ŘJ světel? Informace o rychlosti jízdy jde po sběrnici...
Při hledání problému bych zkusil přepnout ŘJ světel na RHD, zda se pak budou světla natáčet jen doleva.
Ford C-Max 1.8i 16V, 2010, Titanium
Byl: Ford Focus 1.8 TDdi kombi, 1999, ghia
Byl: Ford Sierra 2.0i DOHC kombi, 1989, LX
Byl: Ford Focus 1.8 TDdi kombi, 1999, ghia
Byl: Ford Sierra 2.0i DOHC kombi, 1989, LX
- ZaQik
- Admin

- Příspěvky: 25105
- Registrován: 30.05.2010 17:33
- Bydliště: exit 82 na D0
Re: Přisvícení do zatáčky - adaptivní světla (AFS)
ano; proto se na to ptam
Ford Focus mk3 combi 1.6 Ti-VCT, r.v.2018 + Ford Fiesta mk7 3D 1.25, r.v.2014
byl Ford Focus mk2 combi 1.6, r.v.2009 + Ford Fiesta mk6 1.4 TDCi r.v. 2004
Nejsem poradna, encyklopedie ani hotline spolecnosti Ford - ptejte se na foru, od toho je.
byl Ford Focus mk2 combi 1.6, r.v.2009 + Ford Fiesta mk6 1.4 TDCi r.v. 2004
Nejsem poradna, encyklopedie ani hotline spolecnosti Ford - ptejte se na foru, od toho je.
-
kozelkozel
- Nováček

- Příspěvky: 22
- Registrován: 09.08.2011 12:05
- Bydliště: Praha
Re: Přisvícení do zatáčky - adaptivní světla (AFS)
No, zní to blbě, ale přeci jsi jen měl pravdu, za jízdy to funguje. Děkuji
Ford Focus II po FL 2008 1,6 tdci 66kw
Ford Kuga 4x4 2012 2.0l 103 kw
Ford Kuga 4x4 2012 2.0l 103 kw
Kdo je online
Uživatelé prohlížející si toto fórum: Žádní registrovaní uživatelé a 1 host

