Stránka 1 z 1

El sklopná zrcátka

Napsal: 27.12.2015 21:17
od fisa
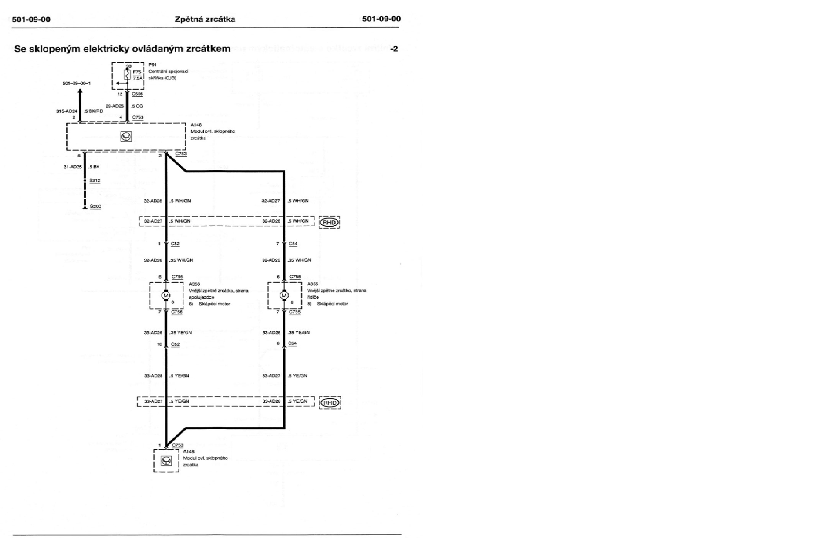
Zdravim. Mám takovej hloupej dotaz.Mám zrcátka po FL se sklápěním mám i ovládání se sklápěním ,ale mám i auto před FL. Dá se to nějak dodělat? Téma v návodech mám projitý, ale chtěl bych zachovat sklápění jen na povel ovladače.Díky moc Fíša

Re: El sklopná zrcátka

Napsal: 27.12.2015 22:18
od krenda
Ještě ti chybí hnědé relé pro ovládání sklápění zrcátek a vzhledem k tomu, že to máš před FL, tak natahat komplet dráty. Do dveří, ve dveřích, od gemu,... Kdyby se ti s tím nechtělo drbat, tak bych zrcátka uživil, mám komplet přípravu na ně :-)
sklopná zrcátka.png

Re: El sklopná zrcátka

Napsal: 17.06.2016 07:21
od gines
Už to někdo dodělával do předfl?