Osvětlení prostoru pro nohy vpředu
- foki
- Admin

- Příspěvky: 19243
- Registrován: 02.02.2008 03:18
- Bydliště: České Budějovice
- Kontaktovat uživatele:
Re: Osvetlenie priestoru pre nohy v predu - ziarovka?
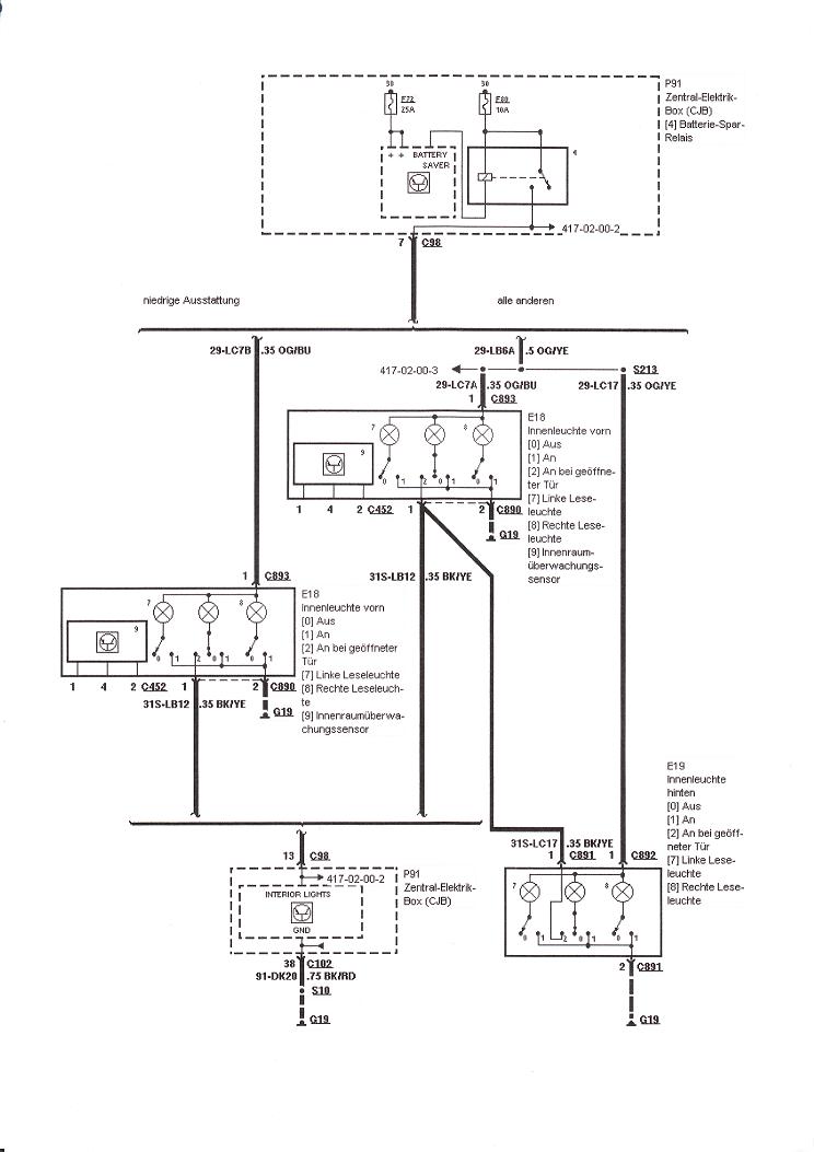
to neni svorkovnice to je spoj . (S8) a ten konektor (C102) je ten nejvetsi vlevo na pojiskovce pod nohama spolujezdce
Odpovědi lehké - 100,- Kč
Odpovědi, při kterých
se musí myslet - 240,- Kč
Vážné odpovědi - 340,- Kč
Odpovědi na hloupé
a zbytečné otázky - 400,- Kč
specialní sazba :
otázka, na kterou jsem už dříve odpověděl - 500 Kč
Odpovědi, při kterých
se musí myslet - 240,- Kč
Vážné odpovědi - 340,- Kč
Odpovědi na hloupé
a zbytečné otázky - 400,- Kč
specialní sazba :
otázka, na kterou jsem už dříve odpověděl - 500 Kč
- Nepér
- Zkušený

- Příspěvky: 1500
- Registrován: 09.12.2009 08:35
- Bydliště: Praha 8
Re: Osvetlenie priestoru pre nohy v predu - ziarovka?
Podle mě to prodrátováno bude, ale ta věc, s označením CJB tomu nebude spínat zem...
Mondeo mk4, 2.0i, 2010
- foki
- Admin

- Příspěvky: 19243
- Registrován: 02.02.2008 03:18
- Bydliště: České Budějovice
- Kontaktovat uživatele:
Re: Osvetlenie priestoru pre nohy v predu - ziarovka?
to je cela pojistkovka a mel bys to mit na 41pinu konektor C102 , ale to same jde na C98 pin 13
Odpovědi lehké - 100,- Kč
Odpovědi, při kterých
se musí myslet - 240,- Kč
Vážné odpovědi - 340,- Kč
Odpovědi na hloupé
a zbytečné otázky - 400,- Kč
specialní sazba :
otázka, na kterou jsem už dříve odpověděl - 500 Kč
Odpovědi, při kterých
se musí myslet - 240,- Kč
Vážné odpovědi - 340,- Kč
Odpovědi na hloupé
a zbytečné otázky - 400,- Kč
specialní sazba :
otázka, na kterou jsem už dříve odpověděl - 500 Kč
- foki
- Admin

- Příspěvky: 19243
- Registrován: 02.02.2008 03:18
- Bydliště: České Budějovice
- Kontaktovat uživatele:
Re: Osvetlenie priestoru pre nohy v predu - ziarovka?
.
Odpovědi lehké - 100,- Kč
Odpovědi, při kterých
se musí myslet - 240,- Kč
Vážné odpovědi - 340,- Kč
Odpovědi na hloupé
a zbytečné otázky - 400,- Kč
specialní sazba :
otázka, na kterou jsem už dříve odpověděl - 500 Kč
Odpovědi, při kterých
se musí myslet - 240,- Kč
Vážné odpovědi - 340,- Kč
Odpovědi na hloupé
a zbytečné otázky - 400,- Kč
specialní sazba :
otázka, na kterou jsem už dříve odpověděl - 500 Kč
- Nepér
- Zkušený

- Příspěvky: 1500
- Registrován: 09.12.2009 08:35
- Bydliště: Praha 8
Re: Osvetlenie priestoru pre nohy v predu - ziarovka?
Takže C102, pin 41 je sice obsazený v konektoru a podle všeho by to mělo svítit, když se spojí se zemí, jenže na straně pojistkovky proti němu není ani příslušný kontakt, je tam prázdná pozice. Jo a je dobrý znát kód od rádia, když se ta svorkovnice rozpojí
Ještě kouknu na tu C98/13, ta je původně pro stropní světlo? Mám nějakou "social edition" pojistkovku asi...
Mondeo mk4, 2.0i, 2010
- foki
- Admin

- Příspěvky: 19243
- Registrován: 02.02.2008 03:18
- Bydliště: České Budějovice
- Kontaktovat uživatele:
Re: Osvetlenie priestoru pre nohy v predu - ziarovka?
ne puvodne , ale je pro stropni svetlo tak bych to mozna pripojil tam
Odpovědi lehké - 100,- Kč
Odpovědi, při kterých
se musí myslet - 240,- Kč
Vážné odpovědi - 340,- Kč
Odpovědi na hloupé
a zbytečné otázky - 400,- Kč
specialní sazba :
otázka, na kterou jsem už dříve odpověděl - 500 Kč
Odpovědi, při kterých
se musí myslet - 240,- Kč
Vážné odpovědi - 340,- Kč
Odpovědi na hloupé
a zbytečné otázky - 400,- Kč
specialní sazba :
otázka, na kterou jsem už dříve odpověděl - 500 Kč
- Nepér
- Zkušený

- Příspěvky: 1500
- Registrován: 09.12.2009 08:35
- Bydliště: Praha 8
Re: Osvetlenie priestoru pre nohy v predu - ziarovka?
Jasně, tak jsem to myslel. Nenajdeš ještě někde schéma toho stropního světla?
Mondeo mk4, 2.0i, 2010
- foki
- Admin

- Příspěvky: 19243
- Registrován: 02.02.2008 03:18
- Bydliště: České Budějovice
- Kontaktovat uživatele:
Re: Osvetlenie priestoru pre nohy v predu - ziarovka?
.
Odpovědi lehké - 100,- Kč
Odpovědi, při kterých
se musí myslet - 240,- Kč
Vážné odpovědi - 340,- Kč
Odpovědi na hloupé
a zbytečné otázky - 400,- Kč
specialní sazba :
otázka, na kterou jsem už dříve odpověděl - 500 Kč
Odpovědi, při kterých
se musí myslet - 240,- Kč
Vážné odpovědi - 340,- Kč
Odpovědi na hloupé
a zbytečné otázky - 400,- Kč
specialní sazba :
otázka, na kterou jsem už dříve odpověděl - 500 Kč
- Nepér
- Zkušený

- Příspěvky: 1500
- Registrován: 09.12.2009 08:35
- Bydliště: Praha 8
Re: Osvetlenie priestoru pre nohy v predu - ziarovka?
To je přesně ono, takže se to zdá být totéž, večer to zkusím propojit. Měl jsem strach, aby ten předmět, co spíná zem osvětlení interiéru nebyl přetížen. Ale když má umět spínat i die Leseleuchten, které nemám, mělo by to být ok.
Mondeo mk4, 2.0i, 2010
- Loco
- Nováček

- Příspěvky: 30
- Registrován: 13.02.2010 20:36
- Bydliště: Ouvaly
Re: Osvetlenie priestoru pre nohy v predu - ziarovka?
Nepér: myslíš že bys moh udělat pár fotek co a jak si propojil? Asi bych to podle popisu cos psal nedal
, třeba se to bude hodit i ňáký jiný lamě jako sem já
dík
- Quickie
- Moderátor

- Příspěvky: 7240
- Registrován: 10.03.2008 21:18
- Bydliště: Revúca, Trnava
Re: Osvetlenie priestoru pre nohy v predu - ziarovka?
Loco tebe to tiež nesvieti? máme v podstate rovnake auta a mne stačilo osadiť žiarovky
- Loco
- Nováček

- Příspěvky: 30
- Registrován: 13.02.2010 20:36
- Bydliště: Ouvaly
Re: Osvetlenie priestoru pre nohy v predu - ziarovka?
poudám nesvítí, vrazil sem tam žárovky (w5w, skleněný - někde vejš je link) a nic. Dráty tam vedou, vejš sem se nekoukal... Vozidlo je z hodně probíranýho Španělska (pak přidám do správný sekce fotos a tak) a má takovou zvláštně poskládanou výbavu... dual autom. klima, ale vzadu švihadla, trochu jinej středovej tunel...
-
zirafak
- Test driver

- Příspěvky: 8970
- Registrován: 02.02.2008 03:18
Re: Osvetlenie priestoru pre nohy v predu - ziarovka?
Rozmyslm,ci nebude problem bud v chybajucej,alebo vypalenej poistke,ale to by ti potom nesvietilo ani stropne osvetlenie. 
- Loco
- Nováček

- Příspěvky: 30
- Registrován: 13.02.2010 20:36
- Bydliště: Ouvaly
Re: Osvetlenie priestoru pre nohy v predu - ziarovka?
Svítí i stropní světlo i světlo v šuplíku před spolujezdcem. Uvidíme jak bude úspěšnej Nepér, jeho nápad vypadá nadějnězirafak píše:Rozmyslm,ci nebude problem bud v chybajucej,alebo vypalenej poistke,ale to by ti potom nesvietilo ani stropne osvetlenie.
vím že ty světýlka jsou ptákovina, ale mám to v mondeu '98 (z fabriky) a je to rozhodně příjemný při nastupování
- Nepér
- Zkušený

- Příspěvky: 1500
- Registrován: 09.12.2009 08:35
- Bydliště: Praha 8
Re: Osvetlenie priestoru pre nohy v predu - ziarovka?
Mám taky Španěla, rok 05, výbava vypadá na sport, ale nemá to chromovanou masku (ale ta může bejt měněná) a vzadu to má kotouče...
//edit: Jo a pak mám ještě Favorita, rok 1990

Večer to zkusím změřit a propojit, uvidíme.
//edit: Jo a pak mám ještě Favorita, rok 1990

Večer to zkusím změřit a propojit, uvidíme.
Mondeo mk4, 2.0i, 2010
Kdo je online
Uživatelé prohlížející si toto fórum: Žádní registrovaní uživatelé a 3 hosti


