Navod - fiesta mk7 facelift - obvodovy alarm
- ZaQik
- Admin

- Příspěvky: 25144
- Registrován: 30.05.2010 17:33
- Bydliště: exit 82 na D0
Navod - fiesta mk7 facelift - obvodovy alarm
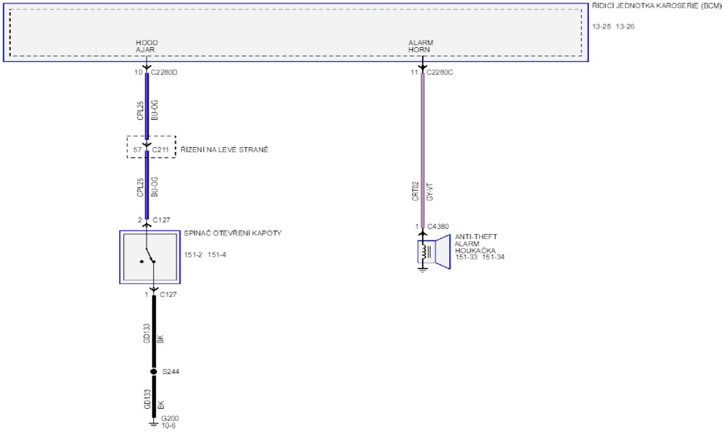
schema:
sirena:
cidlo kapoty:
Ford Focus mk3 combi 1.6 Ti-VCT, r.v.2018 + Ford Fiesta mk7 3D 1.25, r.v.2014
byl Ford Focus mk2 combi 1.6, r.v.2009 + Ford Fiesta mk6 1.4 TDCi r.v. 2004
Nejsem poradna, encyklopedie ani hotline spolecnosti Ford - ptejte se na foru, od toho je.
byl Ford Focus mk2 combi 1.6, r.v.2009 + Ford Fiesta mk6 1.4 TDCi r.v. 2004
Nejsem poradna, encyklopedie ani hotline spolecnosti Ford - ptejte se na foru, od toho je.
- ZaQik
- Admin

- Příspěvky: 25144
- Registrován: 30.05.2010 17:33
- Bydliště: exit 82 na D0
Re: Navod - fiesta mk7 - obvodovy alarm
Postup:
1. osazeni cidla kapoty
- koukneme se na zamek kapoty - na fotce je videt bile cidlo a z nej vedouci kabel => mame vyhrano, staci vymenit bile cidlo (nema senzor uzavreni kapoty; je to jen plast) za cerne (ma senzor uzavreni kapoty)
- bile cidlo je v zamku vzdy, i kdyz neni priveden kabel
- pokud konektor s kabelem chybi, pouzijeme kapotovy konektor napr. z FF2 se dvema piny a vedeme dva draty pod svetlo, kde jeden ukostrime a druhy pres gumovou pruchodku pred ridice dotahneme k jeho noham, kde ho zapojime jako samici do konektoru C211 a odtud (pokud neni priprava) pokracujeme az na BCMi pred spolujezdce na konektor D pin 10 2. osazeni sireny
- odendame plast v kufru nad pravym zadnim kolem - kdyz budeme mit stesti, bude tam pripraven konektor (pokud nebude natahneme drat az k BCMi na konektor C pin 11 (viz vyse)
- osadime sirenu 3. zprovozneni
- diagnostikou zmenime v aute parametr, ze obvodovy alarm je funkcni
1. osazeni cidla kapoty
- koukneme se na zamek kapoty - na fotce je videt bile cidlo a z nej vedouci kabel => mame vyhrano, staci vymenit bile cidlo (nema senzor uzavreni kapoty; je to jen plast) za cerne (ma senzor uzavreni kapoty)
- bile cidlo je v zamku vzdy, i kdyz neni priveden kabel
- pokud konektor s kabelem chybi, pouzijeme kapotovy konektor napr. z FF2 se dvema piny a vedeme dva draty pod svetlo, kde jeden ukostrime a druhy pres gumovou pruchodku pred ridice dotahneme k jeho noham, kde ho zapojime jako samici do konektoru C211 a odtud (pokud neni priprava) pokracujeme az na BCMi pred spolujezdce na konektor D pin 10 2. osazeni sireny
- odendame plast v kufru nad pravym zadnim kolem - kdyz budeme mit stesti, bude tam pripraven konektor (pokud nebude natahneme drat az k BCMi na konektor C pin 11 (viz vyse)
- osadime sirenu 3. zprovozneni
- diagnostikou zmenime v aute parametr, ze obvodovy alarm je funkcni
Ford Focus mk3 combi 1.6 Ti-VCT, r.v.2018 + Ford Fiesta mk7 3D 1.25, r.v.2014
byl Ford Focus mk2 combi 1.6, r.v.2009 + Ford Fiesta mk6 1.4 TDCi r.v. 2004
Nejsem poradna, encyklopedie ani hotline spolecnosti Ford - ptejte se na foru, od toho je.
byl Ford Focus mk2 combi 1.6, r.v.2009 + Ford Fiesta mk6 1.4 TDCi r.v. 2004
Nejsem poradna, encyklopedie ani hotline spolecnosti Ford - ptejte se na foru, od toho je.
- ZaQik
- Admin

- Příspěvky: 25144
- Registrován: 30.05.2010 17:33
- Bydliště: exit 82 na D0
Re: Navod - fiesta mk7 facelift - obvodovy alarm
kdyz jsem alarm dodelaval, v microcatu jsem zjistil, ze dverni zamek ridice je pro auta s alarmem jiny ... standardni je AM5A-U21813-Ax, alarmovy pak AM5A-U21813-Ex (dvojite se bohuzel nedelaji, i kdyz ve schematech popsane jsou) ... aktivne jsem si tenkrat poridil verzi EC, ale protoze puvodni zamek ve dverich fungoval, tak jsem to vic neresil
vcera jsem vyndaval dverni panel kvuli priprave bezklice a tak jsem zamky fyzicky porovnal ... verze Ex ma v konektoru navic dva piny, kterymi se ovlada alarm pri zamykani/odemykani auta klicem (tedy ne pres dalkove ovladani)
Ford Focus mk3 combi 1.6 Ti-VCT, r.v.2018 + Ford Fiesta mk7 3D 1.25, r.v.2014
byl Ford Focus mk2 combi 1.6, r.v.2009 + Ford Fiesta mk6 1.4 TDCi r.v. 2004
Nejsem poradna, encyklopedie ani hotline spolecnosti Ford - ptejte se na foru, od toho je.
byl Ford Focus mk2 combi 1.6, r.v.2009 + Ford Fiesta mk6 1.4 TDCi r.v. 2004
Nejsem poradna, encyklopedie ani hotline spolecnosti Ford - ptejte se na foru, od toho je.
- ZaQik
- Admin

- Příspěvky: 25144
- Registrován: 30.05.2010 17:33
- Bydliště: exit 82 na D0
Re: Navod - fiesta mk7 facelift - obvodovy alarm
pokud nekomu prijde, ze alarm v kufru moc hlasite nehouka (nebo mate nekoho, komu jste sirenu venovali
), tak u fiesty bohuzel nefunguje stejna vec jako u mondea mk4 nebo focuse mk3, tj. ze prepnete alarm na typ "thatcham" a houka se klaksonem ... nezbyva tedy nez auto osadit bateriovou sirenou (dil AV2T-19G229-BB)
nevim, na kolik je pouzitelna samotna sirena z jinych typu fordu, ale drzak je (podle forda) soucasti sireny a tak se neni ceho chytit bateriova sirena se dava nad prave predni kolo, kde jsou pripravene montazni otvory: jedne kulaty pro zachyceni ocka a dva ctvercove pro umisteni plastovych matek (finis 1681380 nebo levnejsi 1698157) fotka mista vyslednou fotku nemam, protoze jsem napoprve mel jiny typ plastovych matek, ktere tam nedrzely ... a podruhe jsem uz podbeh nesundaval a sirenu jsem osadil pri sundanem prednim narazniku jako gynekolog
zapojeni sireny - kostra kdekoli v motorovem prostoru (jedna je za autobaterii, blizsi pod pravym svetlometem)
- napajeni z pojistkovnice v motorovem prostoru: F35 urcite nebude pripravena, ale da se vzit z vedlejsi F32 (klakson)
- sbernice vede pres konektor C211 (jako signal od kapoty) na BCM do sediveho konektoru na pin 24 (stejny pro ultrazvuky viewtopic.php?t=53261 a couvaci kameru viewtopic.php?t=53994)
... a nezapomenout prepnout diagnostikou typ alarmu na bateriovy
nevim, na kolik je pouzitelna samotna sirena z jinych typu fordu, ale drzak je (podle forda) soucasti sireny a tak se neni ceho chytit bateriova sirena se dava nad prave predni kolo, kde jsou pripravene montazni otvory: jedne kulaty pro zachyceni ocka a dva ctvercove pro umisteni plastovych matek (finis 1681380 nebo levnejsi 1698157) fotka mista vyslednou fotku nemam, protoze jsem napoprve mel jiny typ plastovych matek, ktere tam nedrzely ... a podruhe jsem uz podbeh nesundaval a sirenu jsem osadil pri sundanem prednim narazniku jako gynekolog
zapojeni sireny - kostra kdekoli v motorovem prostoru (jedna je za autobaterii, blizsi pod pravym svetlometem)
- napajeni z pojistkovnice v motorovem prostoru: F35 urcite nebude pripravena, ale da se vzit z vedlejsi F32 (klakson)
- sbernice vede pres konektor C211 (jako signal od kapoty) na BCM do sediveho konektoru na pin 24 (stejny pro ultrazvuky viewtopic.php?t=53261 a couvaci kameru viewtopic.php?t=53994)
... a nezapomenout prepnout diagnostikou typ alarmu na bateriovy
Ford Focus mk3 combi 1.6 Ti-VCT, r.v.2018 + Ford Fiesta mk7 3D 1.25, r.v.2014
byl Ford Focus mk2 combi 1.6, r.v.2009 + Ford Fiesta mk6 1.4 TDCi r.v. 2004
Nejsem poradna, encyklopedie ani hotline spolecnosti Ford - ptejte se na foru, od toho je.
byl Ford Focus mk2 combi 1.6, r.v.2009 + Ford Fiesta mk6 1.4 TDCi r.v. 2004
Nejsem poradna, encyklopedie ani hotline spolecnosti Ford - ptejte se na foru, od toho je.
Kdo je online
Uživatelé prohlížející si toto fórum: Žádní registrovaní uživatelé a 1 host

